De Hoeve
Gelijkvloers
“Aaaaan taaaaaaafeeel!”, ruik je de geur van verse spaghettisaus al? Het comfortabele gevoel van warm thuiskomen na een ijskoude winterwandeling? Of dat van een heerlijk fris biertje uit de frigo nemen na een snikhete zomertrektocht? Hier kan je je schoenen eindelijk uitdoen (‘aaahh!’), op het gelijkvloers leeft de groep.










Plannetje vakantiewoning gelijkvloers

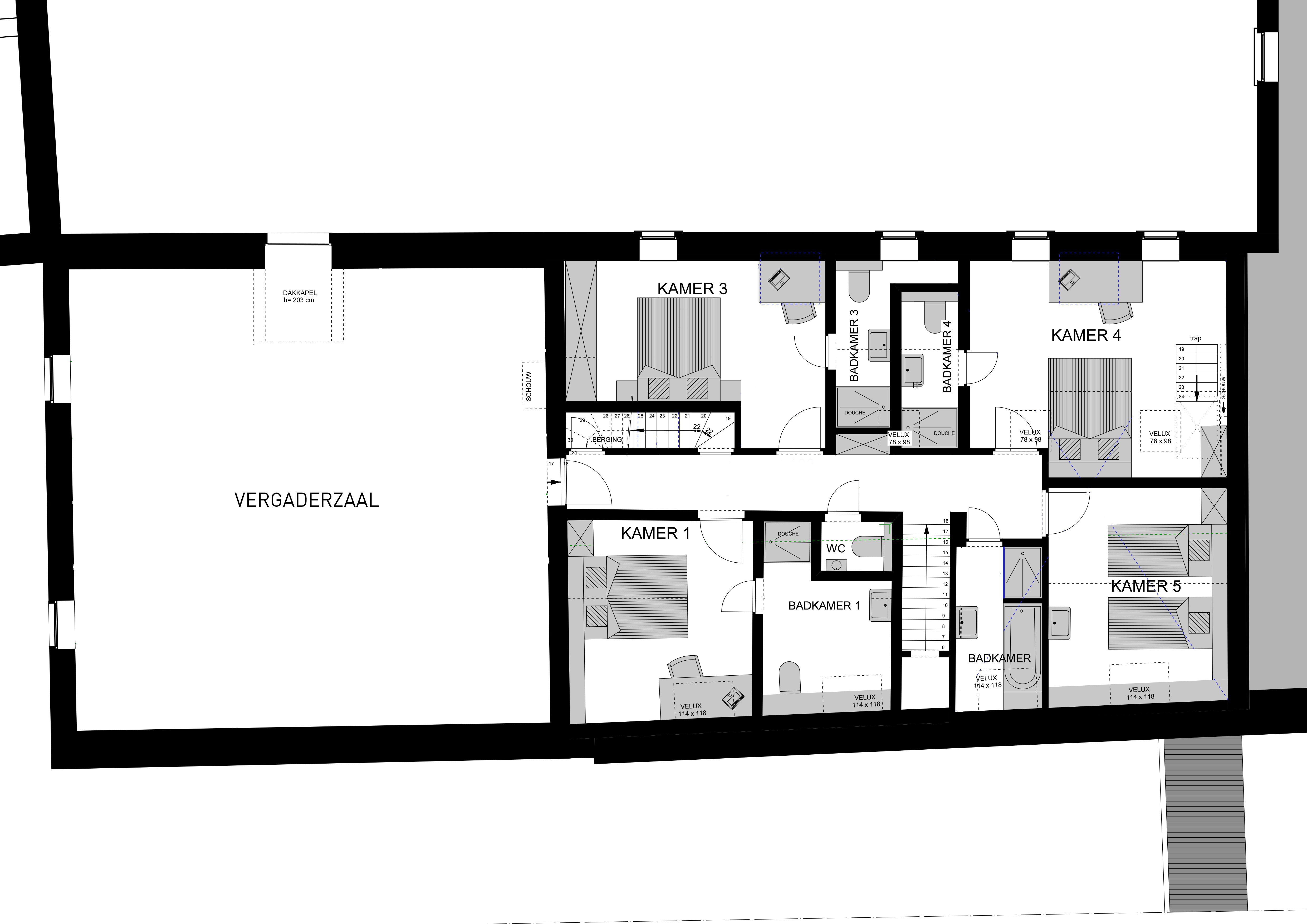
Eerste verdieping
1 familiekamer met mezzanine en eigen badkamer, 1 slaapkamer met lavabo, een badkamer (douche, bad), 2 comfortabele slaapkamers met elk eigen badkamer, extra toilet op de gang. Ernaast een ruime vergaderzaal die apart kan worden gehuurd.









Plannetje vakantiewoning eerste verdieping

Tweede verdieping
1 ruime slaapkamer met lavabo en babyplooibed.



Plannetje vakantiewoning tweede verdieping
